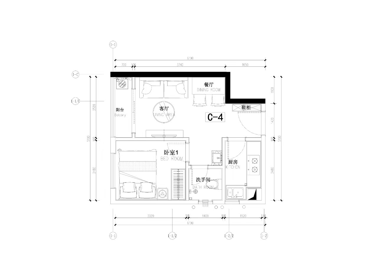
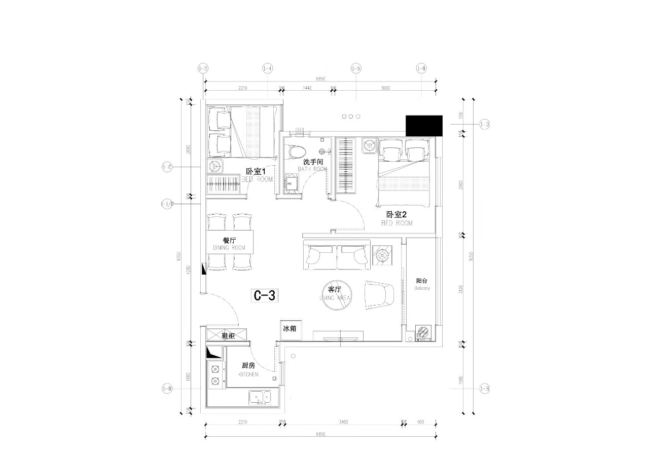
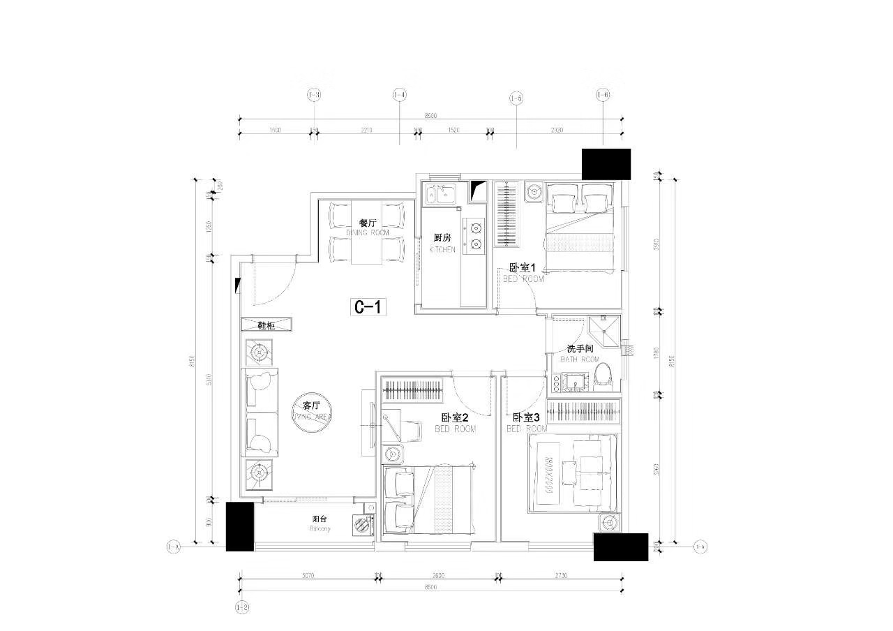
龍華大浪—科技園大廈單價1 8萬總價75萬起45-107㎡1-3房稀缺高層精裝美宅45-49㎡1房2廳1衛65-81㎡2房2廳1衛98-107㎡3房2廳1-2衛首付5成,分
房屋戶型:1室 、2室 、3室 、
住宅類型:大紅本房
區域:龍華大浪
最新開盤:2020.4.12
立即咨詢
24小時咨詢熱線:13267179661
龍華大浪—科技園大廈
單價1.8萬總價75萬起
45-107㎡ 1-3房稀缺高層 精裝美宅
45-49㎡ 1房2廳1衛
65-81㎡ 2房2廳1衛
98-107㎡ 3房2廳1-2衛
首付5成,分期3~5年
大浪商業核心圈:
交通配套:地鐵6號線羊臺山東站,公交中建科技園站624(龍華汽車站)M340(深圳北)
教育配套:龍華中學、同勝學校、大浪實驗學校
商業配套:大浪商業中心、紅山商圈(九方、沃爾瑪、環宇新天地)、深圳北商圈(繽果空間、星河Cococity)
醫療衛生配套:龍華人民醫院(三甲醫院)、龍華區婦幼保健中心,深圳龍濟醫院;
休閑運動:羊臺山森林公園、大浪勞動者廣場、大浪體育公園
感謝您的瀏覽;
本站在售樓盤房源均為開發商售樓處直售
不收取任何中介費、喝茶費,請放心預約!
為了不耽誤到您寶貴的時間,能給到您一個更好的看房體驗,請提前一小時電話或微信預約看房
看房預約;132-6717-9661 (微信同號)













深圳市寶安區石巖街道羅租工業大道與建興路交匯處
1、【粵港澳灣區核心】:粵港澳大灣區的經濟總量已經超過舊金山灣區,接近紐約灣區水平,預計很快將超過東京灣區,成為全球第一大灣區2、【
深圳市龍崗區大運新城片區龍飛大道與青春路交匯處
真公寓丨不限購丨不限貸丨個人名義可購買超低門檻:約34-60㎡壓軸公寓,單價3 06萬起片區最低:大運片區商辦最低總價,主力總價105-110萬。
龍崗大運新城青春路與龍飛大道交界處
總價百萬起,撬動大運中心輕資產,薈生活,伴享家輕資產,撬動大未來不限購不限貸輕資產,坐享大運中心、大運山公園、國際大學園、83萬㎡產
龍崗大運新城青春路與龍飛大道交界處
大運片區商辦最低總價,均價約3 4萬 ㎡國際大學園、科技園穩定14萬高精尖租客群體買單,不愁租、不愁漲。地標配套百米之隔、國際大學園環繞
龍崗大運新城青春路與龍飛大道交界處
與亞洲第一高樓世貿深港國際中心僅一路之隔,單價低至2 8萬起 價格洼地【U空間】:單價低至2 8萬起,精裝交付【商鋪】:1 人均商業面積僅0
深圳市南山區科苑南路與高新南十道交匯處
4 68萬 平起洼地價格搶占深圳灣核心商務資產項目位于南山高新技術園南區,總部企業聚集高地;深圳市屬國企深投控扛鼎開發,深圳灣科技專業
深圳龍華觀瀾觀瀾鎮桂花村西北邊
一句話賣點銀星科技園位于深圳中部發展軸龍華區梅觀高速出口旁,區位優越,交通便利,30分鐘通達深圳各區。項目賣點8銀星科技大廈是深圳市
深圳光明區光明觀光路3009號
一句話賣點光明鳳凰城最核心區域,央企開發,光明最成熟園區。項目賣點一交通便利:位于深圳光明區光明城高鐵站旁,廣深港客運專線以東、觀