項目6大必買理由【世界第四灣,深圳幾何中軸線】灣區是世界經濟的增長極,粵港澳大灣區作為四大灣區之首,引領全球經濟和科技發展,深圳—
項目6大必買理由
【世界第四灣,深圳幾何中軸線】
灣區是世界經濟的增長極,粵港澳大灣區作為四大灣區之首,引領全球經濟和科技發展,深圳——粵港澳大灣區領頭羊,萬億東進戰略造就深圳東產業高地,匯聚科技人才,項目處于深圳城市中軸線與東進線的交匯處,臨近羅湖、福田龍華坂田區域,同時在城市更新輪序發展的背景下,龍崗布吉拆除重建、城市更新、釋放城市發展的巨大空間,未來價值不可估量。
【城市更新紅利,千億舊改首發】
坐擁千億舊改首發紅利,項目周邊已經立項20個舊改項目,匯聚各華潤、萬科、華僑城、招商、京基、中州、佳兆業等品牌開發商,未來還會打造深圳東部天“布吉塔”(規劃約680米),多座摩天輪建筑、政府配套“布吉文化中心”、百萬城市綜合體等。距項目一路之隔的南灣街道下李朗社區已經于中州、華潤簽訂合作的舊改項目,項目占地約46.7萬㎡,規劃建成集住宅、商業、商務休閑于一體的大型社區,成為龍崗區示范性建筑群,未來將建成為繼華潤深圳灣、華潤萬象天地之后又一鴻篇巨著,將成為深圳東部的“萬象天地”。
【立體交通,半小時都市生活圈】
交通是區域價值兌現的核心牽引力,項目正處于深圳中軸位置,3條高速+5地鐵+1快速路+1高鐵站組成項目優越的交通路網
3高速:水官高速連接龍崗和南坪快速,便捷到達福田和南山;機荷高速、水官高速轉清平高速瞬時通達羅湖
5地鐵:已開通的10號線上李朗站,及在建和規劃中的14石芽嶺站/16/17/21下李朗站:
1快速路:丹平快速
1高鐵站:深圳東站
真正實現半小時都市生活圈。
【成熟配套,為生活保駕護航】
教育:本項目直線距離400米是下李朗小學,南面直線距離1.7公里是九年一貫制省一級的民辦學校深圳實驗承翰學校,另外周邊還有深圳市康橋外國語學校,深圳市龍崗石芽嶺學校,南灣學校、深圳布吉高級中學等。
商業:項目自帶1.2萬平的大型集中商業,項目對面就是下李朗市場,項目3公里內有星都商業廣場,大芬沃爾瑪等,另外,項目毗鄰華潤李朗舊改,下一個“華潤萬象城“就在家門口。
醫院:深圳市第三人民醫院距項目直線距離僅700米。
【享大城,百萬綜合體上蓋準現樓產品】
項目有兩期組成,總建面17萬,是集商業辦公,酒店餐飲,休閑購物為一體的城市生活綜合體。
【神戶型,通燃氣帶陽臺舒居空間】
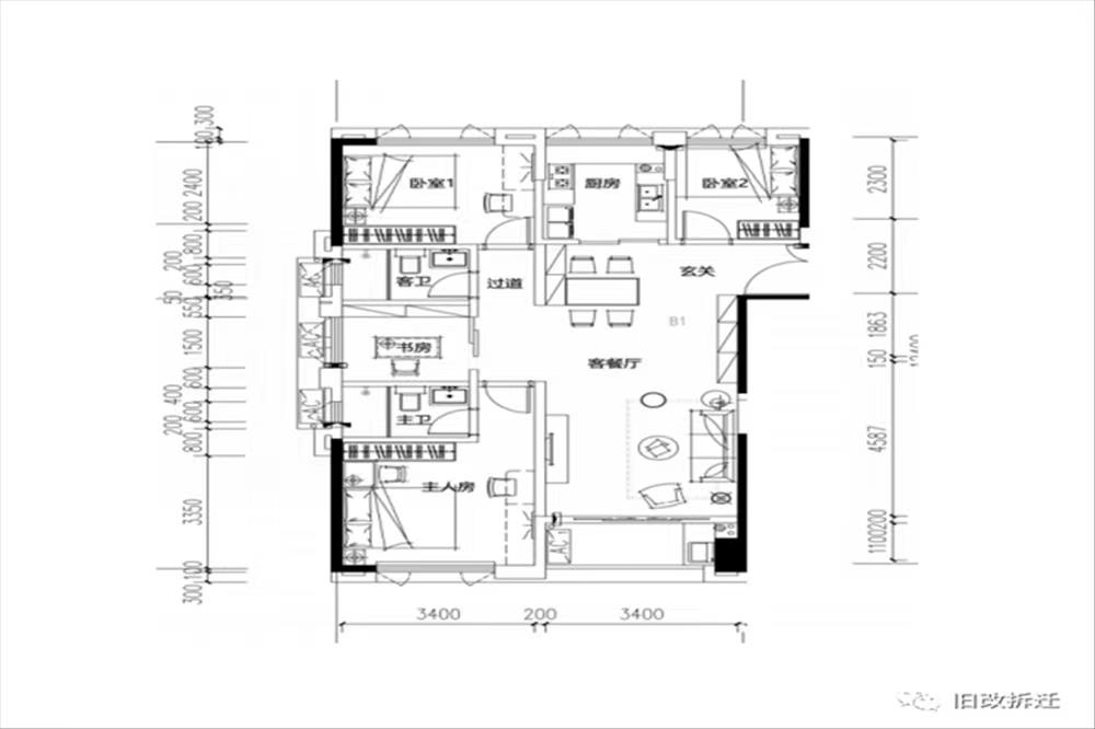
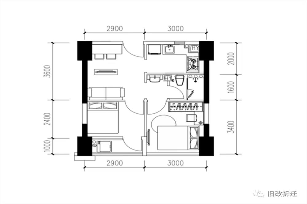
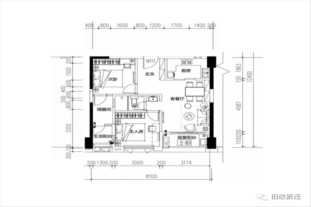
建面約55-125㎡舒居產品,戶戶通燃氣帶陽臺,戶型方正通透,是市面上少有的帶陽臺產品,并可自由打造專屬空間,尊享品位舒居生活。




寶安西鄉固戍寶安大道與固戍二路交匯處
服務熱線:何永斌 聯系方式:13267179661
深圳市龍崗區里南路
服務熱線:何詠斌 聯系方式:13267179661
深圳市寶安西鄉固戍寶安大道與固戍二路交匯處
傲居前海 空港兩大核心經濟發展圈,坐擁雙輪驅動發展紅利,享鴻量城市更新,居西部黃金發展軸線,未來必將承載區域內外的高凈值消費人群,
深圳市龍崗區里南路42號
項目6大必買理由【世界第四灣,深圳幾何中軸線】灣區是世界經濟的增長極,粵港澳大灣區作為四大灣區之首,引領全球經濟和科技發展,深圳—
深圳市羅湖區地鐵站7號線筍崗站A出口
央企品牌精著 匠心淬煉品質】華潤集團——2020年《財富》世界500強第79位,中國內地與香港極具實力的多元化控股企業集團。華潤置地——華
深圳市龍崗區南灣街道水官高速北側
深圳中軸百萬大城之上自用資產,不限購,不限貸,主力建面約78-124㎡深圳中軸百萬綜合體大城之上帶陽臺 不限購 不限貸主力建面約78-124㎡自
深圳市羅湖區寶安北路與梅園路交匯處東南(7號線筍崗站上蓋)
首付僅需百萬起,低門檻進階華潤萬象資產,40㎡-63㎡精裝公寓,全場熱銷1 商務公寓 能落戶積分上學 (條件:需要深圳唯一首套住房)2 華潤
中山市三鄉鎮金涌大道雅居樂萬象郡
81萬買精裝洋房,性價為王,一鍵開啟南部新城新生活。雅居樂·萬象郡是雅居樂地產全新造城實踐,集人居、商業、生態、 多功能于一體。超10